Structural glass and facade engineering services for Apple’s new 11m tall store in Dubai Mall, which attracts over 80 million visitors every year.

Eckersley O’Callaghan has provided structural glass and facade engineering services for Apple’s new store in Dubai Mall. The structure has a 56.6-metre curved storefront spanning over two floors, with a 5.5-metre-wide terrace.

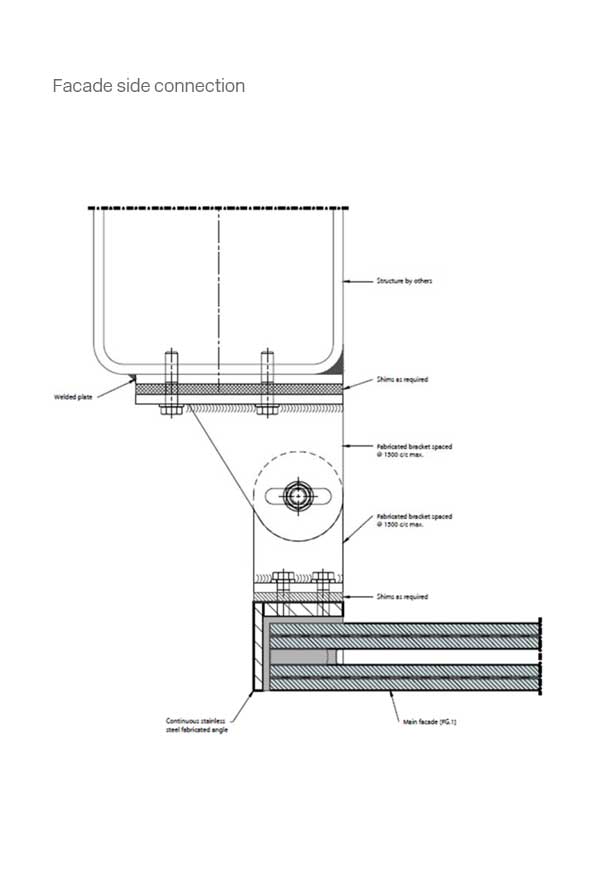
We engineered the 11-metre-high curved, south-facing, glass facade to meet the focus on energy efficiency. This glazing is partially shaded by 18 motorized ‘Solar Wings’ which we designed to respond to Dubai’s extreme environmental conditions.

Our analytical modelling process revealed that the challenging solar gain continues throughout the year, particularly during the winter months when the solar gain is greatest as the sun sits lower on the horizon.

The double-storey glazing incorporates a high performance thermal coating which works in conjunction with the shading shutters as part of the energy management strategy. Our contribution to the project also included detailed engineering of bespoke sliding and pivoting glass doors.

Location 
Dubai

Client 
Apple

Architect
Foster + Partners